mk体育在线官网-MK体育(中国) mk体育在线官网-MK体育(中国) 政策法规 产业市场 节能技术 能源信息 宏观环境 会议会展 活动图库 资料下载 焦点专题 智囊团 企业库
节能技术  中国节能产业网 >> 节能技术 >> 节能案例 >> 正文
棒材多线切分与控轧控冷节能技术
来源:中国节能产业网 时间:2015-5-21 17:14:13 用手机浏览

一、技术名称:棒材多线切分与控轧控冷节能技术

二、技术所属领域及适用范围:钢铁行业 小规格螺纹钢轧制

三、与该技术相关的能耗及碳排放现状

目前,国内轧钢企业轧制小规格螺纹钢筋的能耗为 53kgce/t 钢;主要生产Ⅱ级螺纹钢,我国建筑领域今后将要求使用Ⅲ级或以上等级螺纹钢,所以提高螺纹钢强度及降低生产能耗是小规格螺纹钢筋的主要发展方向。目前应用该技术可实现节能量 3 万 tce/a,CO2 减排约 8 万 t/a。

四、技术内容

1.技术原理

多线切分技术是在型钢热轧机上利用特殊轧辊孔型和切分导卫装置将一根轧件沿纵向切成多根轧件,进而轧制出多根成品轧材。其中四/五切分导卫装置采用前后两组切分轮,前切分轮将多联钢坯外侧的两条钢先分离,后切分轮将中间的两联或三联钢坯再分离,从而实现四/五切分轧制。控轧控冷技术是在热轧过程中,通过对轧材的变形控制和在机架间及成品后安装一种专门的水冷装置,让轧件在常温的水中穿过,对轧件进行快速冷却,从而达到提高钢材组织和性能的目的。

2.关键技术

(1)多线切分技术

在多线切分装置前端设计了铲嘴和铲尖,解决了轧件缠辊及精确对中问题;采用蜗轮蜗杆无级调节技术;分料箱内采用滚动摩擦,保证轧件不易堵钢;开发了高耐磨、不粘钢,耐冲击,耐高温等关键零部件所需要的新材料;根据装备条件设计了相匹配的特殊的四/五切分孔型系统和相应的自动化控制系统。

(2)控轧控冷技术

采用特殊的纹式管,让轧件在穿水装置中运行更流畅,降低堵钢机率;关键零部件采用高耐磨的新材料;根据轧件速度、温度等对水流量、压力实现自动调节与控制。

3.工艺流程

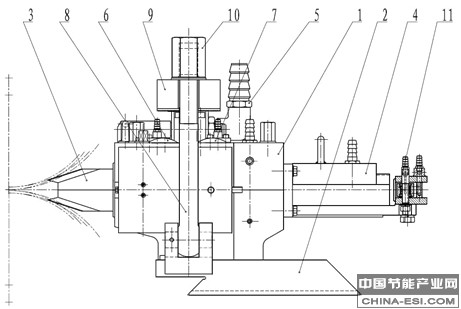
多线切分装置和控轧空冷装置的基本结构见图 1、2。


123

1  箱体  2  底座 3  铲嘴 4  分料槽 5  水嘴 6  前切分轮组 7  后切分轮组

8 拉杆  9 压紧装置 10 螺栓 11 分料辊

图 1 多线切分装置结构简图

123

图 2 控轧空冷装置结构简图

五、主要技术指标

1.减少加热炉待温时间,与两切分相比缩短约 20s/t 钢坯;

2.提高轧制效率,与两切分相比提高 185%以上;

3.节能率 10%以上;

4.螺纹钢质量可提高 1-2 个等级,生产小规格产品可代替大规格产品,节约钢材 12%左右。

六、技术鉴定、获奖情况及应用现状

该技术 2008 年获得安徽省科技进步二等奖,相关技术与装备已获得国家专利。

目前,多线切分技术已成功运用于酒钢集团翼城钢铁公司、武钢玉溪钢铁公司、红 河钢铁公司、江西萍钢集团、山东石横特钢集团、首钢长冶钢铁公司、水城钢铁公 司等。控轧控冷技术已成功运用于酒钢翼城钢铁公司、愉中钢铁公司;武钢玉溪钢 铁公司、红河钢铁公司等,技术成熟可靠。

七、典型应用案例 

典型用户:昆钢集团、晋城福盛钢铁有限公司、萍钢集团等 典型案例 1

技术提供单位:合肥东方节能科技股份有限公司 建设规模:年产 80 万吨螺纹钢轧钢线。主要技改内容:对原有用于轧制单线产品的生产线,改造为多线切分及控轧控冷轧制的生产线。主要设备增加多切分轧制 设备,改造活套、导槽等辅助设备;增建轧机间的控轧控冷轧制设备,增加精轧成 品后的控轧控冷轧制设备等。节能技改投资额 1000 万元,建设期 2 个月。每年可节能 4165tce,年节能经济效益为 620 万元,投资回收期约 1.5 年。

典型案例 2

技术提供单位:合肥东方节能科技股份有限公司

建设规模:年产 80 万吨螺纹钢二切分轧制生产线改造。主要技改内容:轧制产品进行多线切分改造,对轧制过程进行控轧控冷技术改造,主要设备包括对轧制工艺进行修改,增加四/五切分轧制设备,按四/五切分要求改造活套、导槽等辅助设备;增建轧机间的控轧控冷轧制技术设备,增加精轧成品后的控轧控冷轧制技术设备。节能技改投资额 900 万元,建设期 1.5 个月。每年可节能万 4080tce,年节能经济效益 600 万元,投资回收期 1.5 年。

八、推广前景及节能减排潜力

据统计,2011 年我国螺纹钢筋总产量 1.66 亿吨,其中 φ10-12mm 螺纹钢筋产量1374 万吨φ14mm 螺纹钢筋产量约 2500 万吨,占国内钢筋总产量的 23.3%。由于高强度钢筋具有强度高、节材、可降低混凝土的排筋密度等一系列特点,国家将加大 400MPa 及以上高强度钢筋的推广使用力度。预计未来 φ10-φ14mm 钢筋消费量将有所增长,棒材多线切分与控轧控冷节能技术不仅节能节材,而且还可提高小规格螺纹钢筋的轧制强度,具有较好发展空间。预计未来 5 年,该技术在行业内的推广潜力可达到 40%,预计投资总额 1.7 亿元,节能能力 11 万 tce/a,减排能力 29 万 tCO2/a。


分享到:
相关文章 iTAG:
没有相关技术
频道推荐
服务中心
微信公众号

CESI
关于本站
版权声明
广告投放
网站帮助
联系我们
网站服务
会员服务
最新项目
资金服务
园区招商
展会合作
中国mk体育在线官网-MK体育(中国)上线下相结合的一站式节能服务平台。
©2007-2016 CHINA-ESI.COM
鄂ICP备16002099号
节能QQ群:39847109
顶部客服微信二维码底部
扫描二维码关注官方公众微信