mk体育在线官网-MK体育(中国) mk体育在线官网-MK体育(中国) 政策法规 产业市场 节能技术 能源信息 宏观环境 会议会展 活动图库 资料下载 焦点专题 智囊团 企业库
节能技术  中国节能产业网 >> 节能技术 >> 节能案例 >> 正文
智能真空渗碳淬火技术
来源:中国节能产业网 时间:2015-5-28 14:51:27 用手机浏览

一、技术名称:智能真空渗碳淬火技术

二、技术所属领域及适用范围:通用机械行业有渗碳热处理工艺需求的企业

三、与该技术相关的能耗及碳排放现状

2012年我国热处理生产总量约为2000万吨,其中渗碳处理约占1/8,在250万吨左右。渗碳处理的主要设备包括井式炉、箱式多用炉和真空渗碳炉,其中井式渗碳约125万吨、箱式渗碳约123.75万吨、真空渗碳约1.25万吨。井式炉单位电耗最高,箱式多用炉次之,真空渗碳炉最低。根据JB/T50182-1999《箱式多用热处理炉能耗分等》,箱式多用路的一等可比单耗指标为bk≤440kWh/t,而真空渗碳炉的可比单耗为bk=265kWh/t。真空渗碳炉相对箱式多用炉节能量约61kgce/t,减排量约161kgCO2/t。目前应用该技术可实现节能量1万tce/a,CO2减排约3万t/a。

四、技术内容

1.技术原理

真空渗碳是一种真空热处理工艺。由于渗碳在真空环境中进行,可以精确控制碳势,工件表面洁净,有利于碳原子的吸附和扩散,实现高温渗碳速度的提高。相对于普通渗碳,可将渗碳时间缩短50%以上,大幅节约电能。在真空环境下,还可有效避免氧化性气体与工件表面合金元素发生晶间氧化,提高工件的耐磨性和疲劳性能,同时实现对细孔等内表面的渗碳,使整批工件获得均匀一致的表面碳浓度和渗碳层厚度。

智能型真空渗碳淬火炉采用计算机控制系统对温度、时间、渗碳气体流量和压力四个重要参数进行精确控制,保证炉体内温度均匀性和气氛均匀性良好,使渗碳工件获得最小的渗层深度误差和合理的晶相组织分布。同时在计算机控制下,渗碳剂可由多通路多喷嘴以精确流量进入炉内,分布面广且均匀,充分发生裂解和渗碳反应,不会产生过多游离碳,有效减少碳黑对炉体的污染。

2.关键技术

(1)气氛流量控制技术;

(2)减少炭黑污染技术。

3.工艺流程

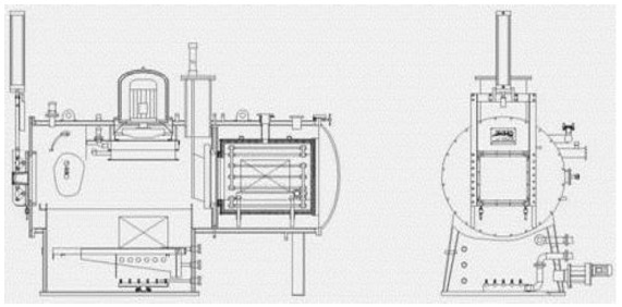
工件→清洗→生成或编制工艺→装炉→真空渗碳→淬火或冷却。其结构图及自动控制系统示意图分别见图1和图2。

123

图1 智能真空渗碳淬火炉结构图

123

图2 智能真空渗碳淬火炉自动控制系统示意图

五、主要技术指标

1.电耗:265kWh/t

2.最高工作温度:1300oC;

3.炉温均匀性:≤±5oC;

4.极限真空度:≤4×10-1Pa;

5.压升率:≤0.65 Pa/h;

6.淬火转移时间:≤25S;

7.气体压力:≤12bar;

8.硬化层深度偏差:≤±0.1mm。

六、技术鉴定、获奖情况及应用现状

该技术于2010年通过国家电炉质量监督检验中心的检验,于2012年通过了中国热处理行业协会组织的鉴定,并获得多项国家实用新型专利。目前已有10余台智能真空渗碳淬火炉在国内机械行业中应用。

七、典型应用案例

典型案例1

案例名称:山东龙口春龙集团公司气动机械厂真空渗碳项目

技术提供单位:北京华海中谊工业炉有限公司

建设规模:1台日处理150-200kg的智能真空渗碳炉。主要技改内容:用智能真空渗碳炉替换箱式多用炉渗碳。主要设备为智能真空渗碳炉。技改投资额156万元,建设期6个月。年节能量30tce,年减排量79tCO2,每年节电产生的经济效益约8.7万元。

典型案例2

案例名称:东莞市禾盛金属科技有限公司真空渗碳项目

技术提供单位:北京华海中谊工业炉有限公司

建设规模:1台日处理150-200kg的智能真空渗碳炉。主要技改内容:用智能真空渗碳炉替换箱式多用炉渗碳。主要设备为智能真空渗碳炉。技改投资额120万元,建设期5个月。年节能量5tce,年减排量13tCO2,每年节电产生的经济效益1.4万元。

八、推广前景和节能减排潜力

目前,国内热处理行业中真空渗碳占全部真空渗碳的市场比例很小,不足1%。随着国内市场的迅速发展,真空渗碳淬火炉年需求量约30台。预计未来5年,该技术预计推广比例15%,可形成的年节能能力10万tce,年减排潜力26万tCO2。


分享到:
相关文章 iTAG:
没有相关技术
频道推荐
服务中心
微信公众号

CESI
关于本站
版权声明
广告投放
网站帮助
联系我们
网站服务
会员服务
最新项目
资金服务
园区招商
展会合作
中国mk体育在线官网-MK体育(中国)上线下相结合的一站式节能服务平台。
©2007-2016 CHINA-ESI.COM
鄂ICP备16002099号
节能QQ群:39847109
顶部客服微信二维码底部
扫描二维码关注官方公众微信